9975 Lockwood Court, Howard Beach, NY

$299,000

Previous Next

4

Beds

3

Baths

2,400

Square feet

About 9975 Lockwood Court

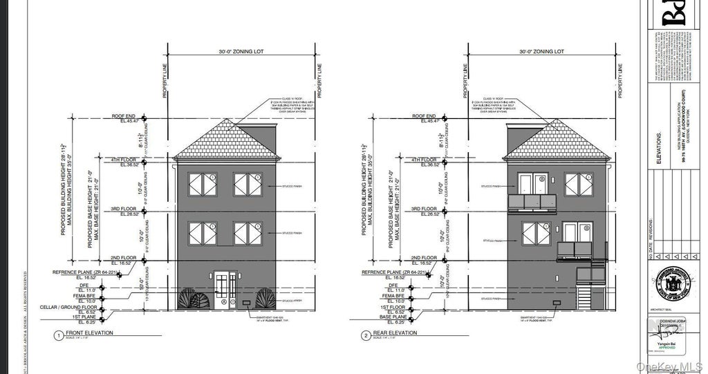
It took me over 18 months to get this Approved. Great 4 Bedroom, Two and Half Bathroom House Ready to be built. One Block away from Hamilton Beach Park, effectively a private Beach and private Park. THIS IS BEING OFFERED WITH TWO ATTACHED APPROVED LOTS, BOTH LOTS APPROVED FOR 3000 Sq Ft, TWO-FAMILY HOUSES, CAN BE SOLD SEPARATELY OR TOGETHER

Features of 9975 Lockwood Court

MLS® # 920643
Price $299,000
Bedrooms 4
Bathrooms 3.00
Full Baths 2
Half Baths 1
Internal Footage 2,400
Acres 0.00
Year Built 2026
Type Residential
Sub-Type Single Family Residence
Style Colonial
Status Active

Community Information

Address 9975 Lockwood Court
City Howard Beach
County Queens
State NY
Zip Code 11414

Amenities

Utilities None
Parking Garage
# of Garages 1
Is Waterfront No
Has Pool No

Interior

Interior Features Other
Appliances ENERGY STAR Qualified Appliances
Heating Natural Gas, Other
Cooling Central Air
Fireplace No
Has Basement Yes
Basement Finished

Exterior

Construction Frame

School Information

District Queens 27
Elementary Ps 146 Howard Beach
Middle Jhs 202 Robert H Goddard
High John Adams High School

Additional Information

Date Listed October 3rd, 2025
Days on Market 10
Short Sale No
RE / Bank Owned No

Listing Details

Listing Provided Courtesy ofRPB Realty
Contact Info516-209-2010

Listing Map

Request a Showing

Provide a valid email address.
When would you like to view this property?