9242 Queens Boulevard # Str4, Rego Park, NY

$3,300

Previous Next

68,700

Square feet

0.47

Acres

About 9242 Queens Boulevard # Str4

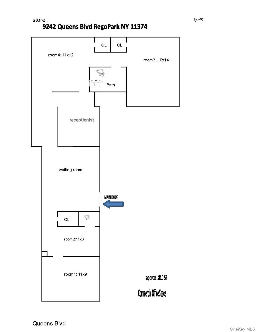
approx 810 SF Medical Office Space for Lease in Prime Location. Close to all

Features of 9242 Queens Boulevard # Str4

MLS® # 918852
Price $3,300
Bathrooms 0.00
Internal Footage 68,700
Square Footage 20496
Acres 0.47
Year Built 1948
Type Commercial Lease
Sub-Type Office
Status Active

Community Information

Address 9242 Queens Boulevard # Str4
City Rego Park
County Queens
State NY
Zip Code 11374

Amenities

Utilities Cable Available, Electricity Available
Is Waterfront No
Has Pool No

Interior

Heating Baseboard
Cooling None
Fireplace No
Has Basement No

Exterior

Construction Brick

Additional Information

Date Listed September 30th, 2025
Days on Market 15
Short Sale No
RE / Bank Owned No

Listing Details

Listing Provided Courtesy ofKeller Williams Landmark II
Contact Info347-846-1200

Listing Map

Request a Showing

Provide a valid email address.
When would you like to view this property?