714 Franklin Avenue, Massapequa, NY

$325,000

Previous Next

0.10

Acres

About 714 Franklin Avenue

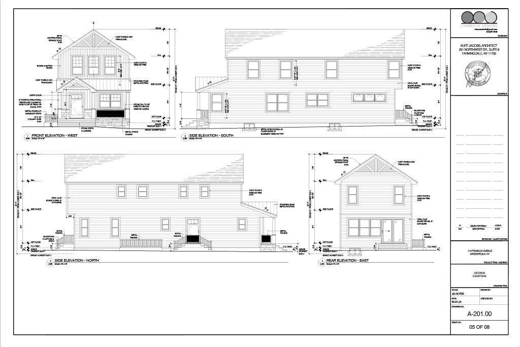
Offered for sale is land in Massapequa with full architectural plans already approved by the Town of Oyster Bay. Permit is in process and expected to be issued within the next few weeks. The approved plans are for a new construction two-story single-family home with a full basement. The proposed house includes just over 2,000 square feet of living space. The layout features a spacious first floor with living and dining areas, kitchen, family room, powder room, and mudroom. The second floor includes four bedrooms and two full baths, including a primary suite with its own bathroom and walk-in closet, plus a separate laundry room. The approved plans meet current zoning, and the site includes two off-street parking spaces. A great build opportunity in a well-established neighborhood.

Features of 714 Franklin Avenue

MLS® # 887308
Price $325,000
Bathrooms 0.00
Square Footage 4560
Acres 0.10
Type Land
Status Active

Community Information

Address 714 Franklin Avenue
City Massapequa
County Nassau County
State NY
Zip Code 11758

Amenities

Is Waterfront No
Has Pool No

Interior

Fireplace No
Has Basement No

School Information

District Plainedge
Elementary Charles E Schwarting School
Middle Plainedge Middle School
High Plainedge Senior High School

Additional Information

Date Listed July 9th, 2025
Days on Market 103
Short Sale No
RE / Bank Owned No

Listing Details

Listing Provided Courtesy ofRixel Real Estate Inc
Contact Info917-943-0898

Listing Map

Request a Showing

Provide a valid email address.
When would you like to view this property?