30 Twin Avenue, Spring Valley, NY

$1,100,000

Previous Next

0.16

Acres

About 30 Twin Avenue

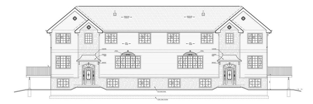
Builders and investors — seize this rare shovel-ready opportunity in the heart of Spring Valley! 32 Twin Ave comes fully approved and ready to build with permits in place, foundation already poured, and utilities installed and connected. Approved for side-by-side units with 1,320 sq ft per floor, this 7,051 sq ft lot (0.16 acres) requires no additional groundwork. Located near schools, shopping, and transit, this property offers immediate build potential in a high-demand area. Don't miss your chance to jump right into construction with no delays!

Features of 30 Twin Avenue

MLS® # 879029
Price $1,100,000
Bathrooms 0.00
Square Footage 7051
Acres 0.16
Type Land
Status Pending

Community Information

Address 30 Twin Avenue
City Spring Valley
County Rockland County
State NY
Zip Code 10977

Amenities

Is Waterfront No
Has Pool No

Interior

Fireplace No
Has Basement No

Exterior

Lot Description Level, Near Public Transit, Near School, Near Shops

School Information

District East Ramapo (Spring Valley)
Elementary Elmwood Elementary School
Middle Chestnut Ridge Middle School
High Ramapo High School

Additional Information

Date Listed June 17th, 2025
Days on Market 131
Short Sale No
RE / Bank Owned No

Listing Details

Listing Provided Courtesy ofKeller Williams Valley Realty

Listing Map

Request a Showing

Provide a valid email address.
When would you like to view this property?