1742 Middle Country Road, Centereach, NY

$2,395,000

Previous Next

12,600

Square feet

2.20

Acres

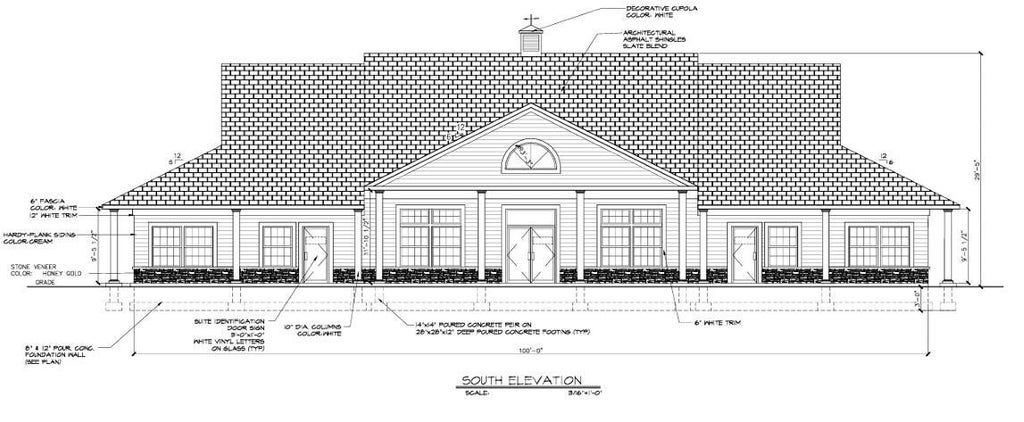
About 1742 Middle Country Road

Fully Approved/Shovel Ready Development Site Two 6,300 SF Class “A” Medical Buildings Units Size: 1,850 - 6,300 SF per building 70 Car Parking Located just west of Nicolls Road (CR 97) Signage on Middle Country Road Traffic Count: 39,000 VPD (RT 25)

Features of 1742 Middle Country Road

MLS® # 866344
Price $2,395,000
Bathrooms 0.00
Internal Footage 12,600
Square Footage 91476
Acres 2.20
Type Commercial Sale
Sub-Type Office
Status Active

Community Information

Address 1742 Middle Country Road
City Centereach
County Suffolk County
State NY
Zip Code 11720

Amenities

Utilities Electricity Available
Parking Spaces 70
Parking Parking Lot, Private, Shared Driveway
Is Waterfront No
Has Pool No

Interior

Heating Ducts
Cooling Central Air
Fireplace No
# of Stories 1
Has Basement Yes
Basement Crawl Space

Exterior

Construction Frame, Stone

Additional Information

Date Listed May 23rd, 2025
Days on Market 142
Short Sale No
RE / Bank Owned No

Listing Details

Listing Provided Courtesy ofCMS Real Estate Services Inc
Contact Info516-398-6419

Listing Map

Request a Showing

Provide a valid email address.
When would you like to view this property?