25.5 Glen Wild Road, Woodridge, NY

$750,000

Previous Next

5.50

Acres

About 25.5 Glen Wild Road

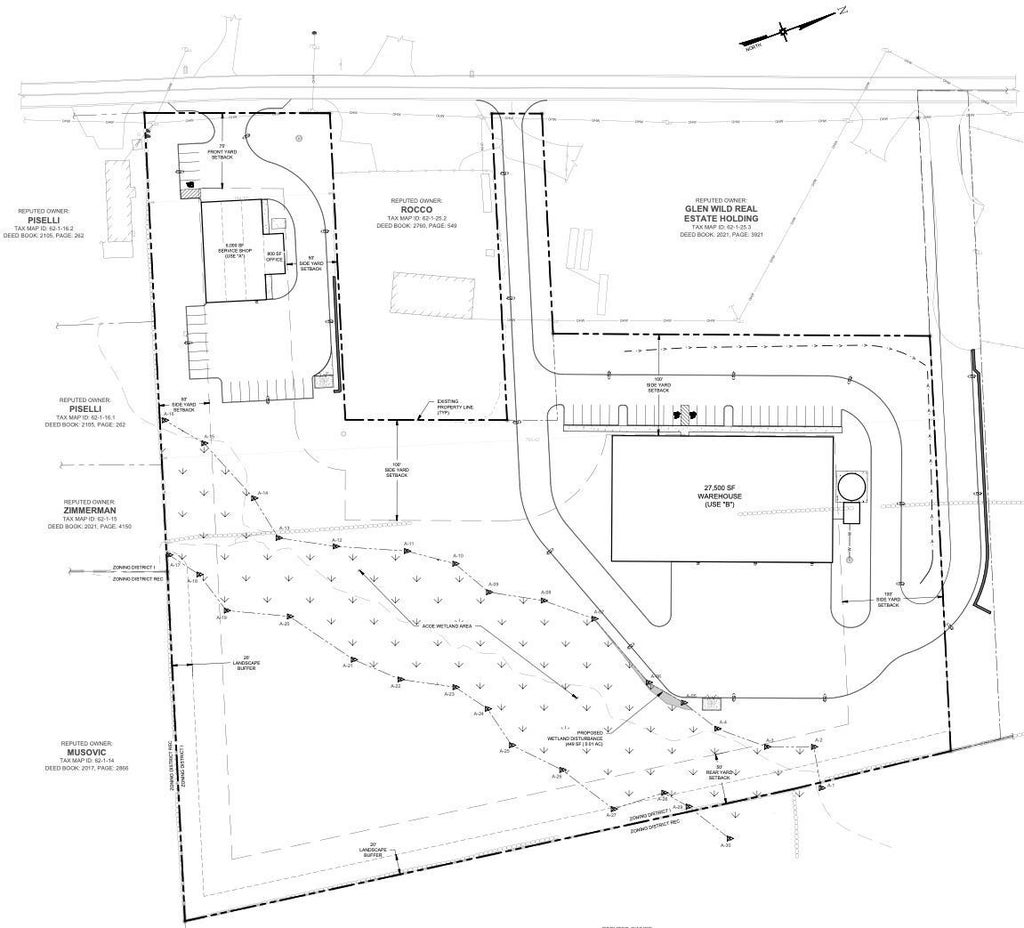
Build big, move fast. This shovel-ready 5.5-acre parcel in the Town of Fallsburg comes fully approved for a 27,500 sq. ft. warehouse and 28 parking spaces, a prime opportunity for developers or investors ready to break ground. With plans in place and approvals secured, you can start building immediately. Location, scale, and speed, this site delivers it all. Don’t miss your chance to capitalize, opportunities like this don’t wait.

Features of 25.5 Glen Wild Road

MLS® # 800382
Price $750,000
Bathrooms 0.00
Square Footage 429501.6
Acres 5.50
Type Land
Status Active

Community Information

Address 25.5 Glen Wild Road
City Woodridge
County Sullivan County
State NY
Zip Code 12733

Amenities

Utilities Electricity Available, Water Available
Is Waterfront No
Has Pool No

Interior

Fireplace No
Has Basement No

Exterior

Lot Description Level

School Information

District Fallsburg
Elementary Benjamin Cosor Elementary School
Middle Fallsburg Junior-Senior High School
High Fallsburg Junior-Senior High School

Additional Information

Date Listed December 12th, 2024
Days on Market 303
Short Sale No
RE / Bank Owned No

Listing Details

Listing Provided Courtesy ofKeller Williams Hudson Valley
Contact Info845-639-0300

Listing Map

Request a Showing

Provide a valid email address.
When would you like to view this property?